Нажимая кнопку «Отправить», я даю согласие на обработку моих персональных данных в соответствии с «Политика обработки персональных данных».

СТАЛЬНЫЕ И ЛАТУННЫЕ ИЗДЕЛИЯ

ОКНО BB100

Экструдированный оконный профиль в латунном исполнении. Благо даря наличию терморазрыва применяется в средней полосе России. Системная глубина 100 мм, ширина штульповой части 68 мм.

wooden image
wooden image
wooden image

ОКНО MS85

Вальцованный оконный профиль. Возможно исполнение в оцинко ванной и нержавеющей стали, а также в латуни. Благодаря наличию терморазрыва применяется в средней полосе России. Системная глубина профиля 85 мм, ширина штульпового соединения 68 мм.

wooden image
wooden image
wooden image

ДВЕРЬ DBB90

Экструдированный дверной профиль в латунном исполнении. Благо даря наличию терморазрыва применяется в средней полосе России. Системная глубина 90 мм, ширина штульповой части 140 мм

wooden image
wooden image
wooden image

ДВЕРЬ DMS85SLIM

Вальцованный дверной профиль. Возможно исполнение в оцинко ванной и нержавеющей стали, а также в латуни. Благодаря наличию терморазрыва применяется в средней полосе России. Системная глу бина профиля 85 мм, ширина штульпового соединения переменная от 68 до 114 мм в районе запорного механизма.

wooden image
wooden image
wooden image

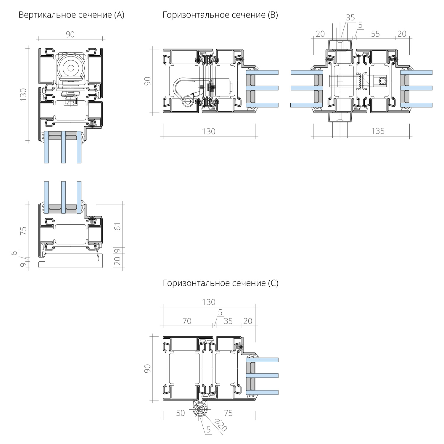
ДВЕРЬ DMS90

Вальцованный дверной профиль. Возможно исполнение в оцинко ванной и нержавеющей стали, а также в латуни. Благодаря наличию терморазрыва применяется в средней полосе России. Системная глубина профиля 90 мм, ширина штульпового соединения 135 мм.

wooden image
wooden image
wooden image

ДВЕРЬ EBE85

Вальцованный дверной профиль знаменитого итальянского бренда Seco. Возможно исполнение в оцинкованной и нержавеющей стали, а также в латуни. Благодаря наличию терморазрыва применяется в средней полосе России. Системная глубина профиля 85 мм, ширина штульпового соединения 156 мм

wooden image
wooden image
wooden image

ДВЕРЬ OS285

Вальцованный дверной профиль знаменитого итальянского бренда Seco. Возможно исполнение в оцинкованной и нержавеющей стали, а также в латуни. Благодаря наличию терморазрыва применяется в средней полосе России. Системная глубина профиля 85 мм, ширина штульпового соединения переменная — от 62 до 128 мм в районе запорного механизма.

wooden image
wooden image
wooden image

ФАСАДНАЯ СИСТЕМА FBB40

Экструдированный фасадный латунный профиль. Имеет уникальный индустриальный дизайн в виде тавра, ширина капота всего 40 мм.

wooden image
wooden image
wooden image

ФАСАДНАЯ СИСТЕМА FMS

Вальцованный фасадный профиль. Возможно исполнение в оцин кованной и нержавеющей стали, а также в латуни. Геометрические параметры рассчитываются исходя из эксплуатационных нагрузок.

wooden image
wooden image
wooden image

Нажимая кнопку «Согласен», вы даете согласие на обработку ваших персональных данных, собираемых с помощью файлов cookie и сервисов сбора технических данных посетителей, с целью предоставления персонализированного доступа к контенту и сервисам Сайта, а именно: администрирования и улучшения Сайта.

Согласен