SLIDING SYSTEMS
Moving glass walls has become an easy thing! The lift-and-slide structures of the HS family allow the glazing of large and very large openings that are inaccessible to pivot door systems.

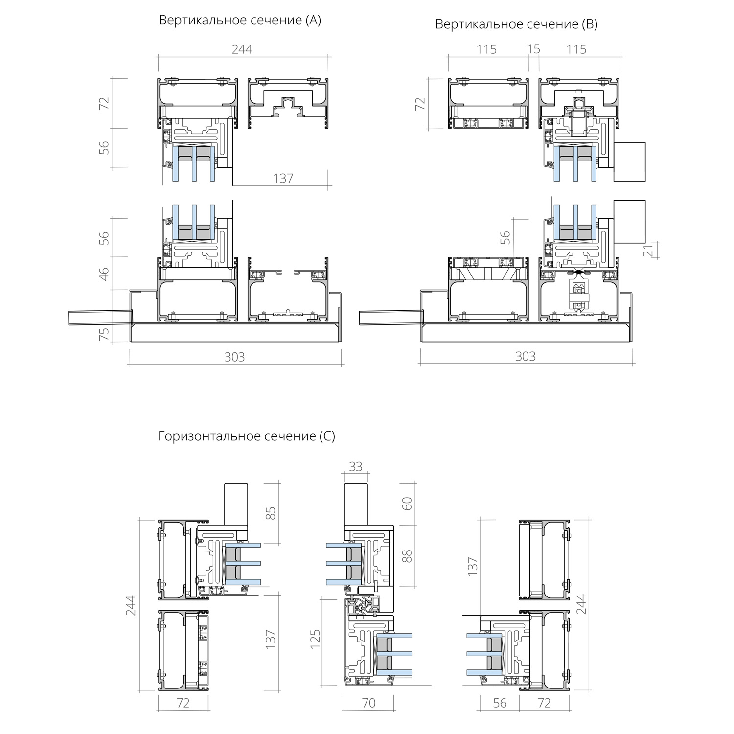
SLIDING SYSTEM HSWA
A lift-and-slide system, implemented in wood-aluminum profile. Also available with patinated brass flashing


SLIDING SYSTEM HSWB
A lift-and-slide system, implemented in wood-aluminum profile. Also available with patinated brass flashing.


SLIDING SYSTEM SWB
First of all, pay attention to slim straight lines and elegance. Advancements in technology allow even the largest sashes to move easily. It is a modern option that will give your property an authentic appearance without losing out on efficiency. The built-in heaters expand the geography of the system application: from the hottest countries to the most severe climatic regions.

